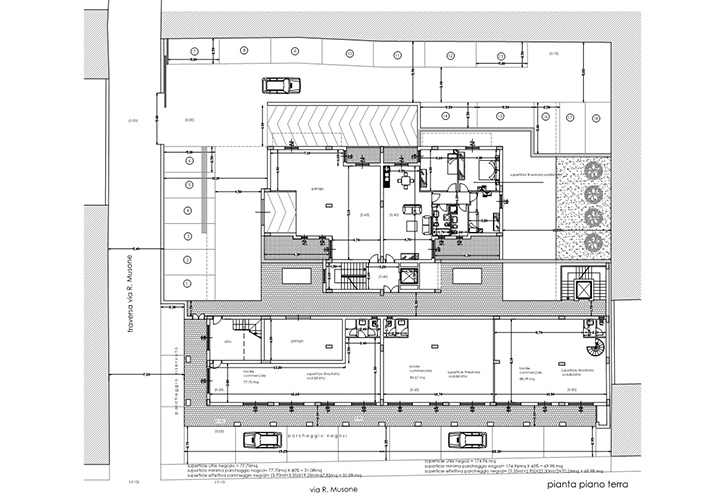
Palazzo GolinoA2Sproject2025-01-21T17:46:45+01:00 Palazzo GolinoDemolizione e ricostruzione di un fabbricato per civile abitazione ubicato lungo via Musone. Data2004-2006 ClientePrivato ProgettoEdilizia residenziale Project Gallery Share This Story, Choose Your Platform! FacebookXRedditLinkedInWhatsAppTelegramTumblrPinterestVkXingEmail Progetti correlati Don Peppe Green Galleria Don Peppe Green Palazzo Tartaglione Galleria Palazzo Tartaglione Prima Domus Galleria Prima Domus