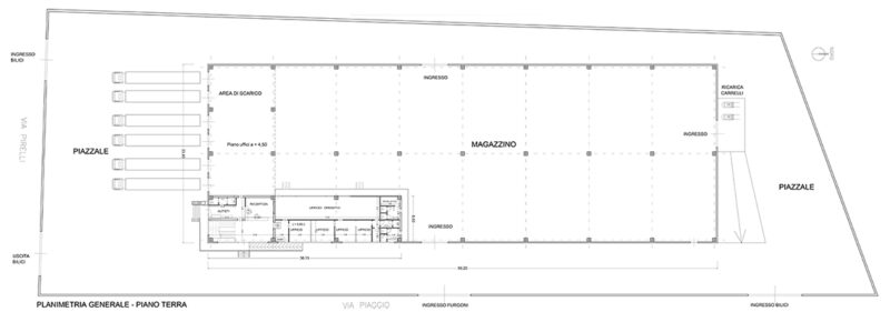
Progetto di un opificio industriale
Realizzazione di un opificio industriale per attività di trasporti e servizi logistici relativi alla distribuzioni delle merci in zona ASI – Aggl. Marcianise-Nord
Data
2023
Cliente
Privato
Progetto
Edificio industriale



